薪ストーブ1台で快適な環境と 40%の省エネルギーを実現
~I-project~
「e-プラスター10」で安定した冬の温湿度環境を創出 伐採材や建築廃材を燃料に薪ストーブの暖房エネルギー使用量を灯油換算で 40%削減 加湿器なしで冬期間の室内相対湿度を 40%以上に維持
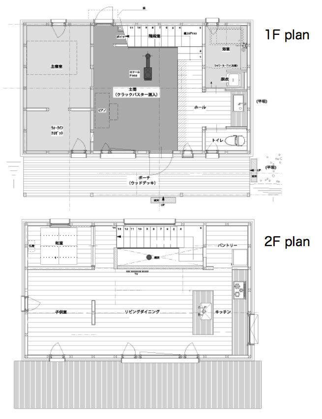
札幌市西区に 2012 年 12 月竣工した I-project。自然環境保護や省エネルギー住宅計画にも造 詣の深いご夫婦と子供二人の 4 人家族。エコロジカルなライフスタイルを大切にしているご家 族が選んだのは「薪ストーブ暖房」。建設地にあった針葉樹を伐採して燃料にする計画で、住宅 の建設中に発生した廃材も燃料として活用することにしました。
玄関土間をコアスパースにした1F のプランは、主寝室と浴室などの水回り空間が土間に連続し て配置されています。主暖房機である薪ストーブはこの土間空間に配置。階段室の吹抜けを利用 して暖気が2F にも供給される計画です。薪ストーブは高効率のシガータイプ・ストーブ。酸素 供給を調整しながら燃料の木材がゆっくり燃焼し、暖房が持続される機構です。
周囲の山並みを一望できる2F リビングにはキッチンと子供室が一体的に配置され、子供室には ロフトが形成されて子供たちの隠れ家スペースも確保されています。1、2F の壁面や天井には 蓄熱内装材「e-プラスター10」が施工され、薪ストーブからの熱と日射のダイレクトゲインを 吸放熱しながら安定した温湿度環境が作り出されます。
主暖房装置として薪ストーブを採用する際に心配されるのが着火時の急激な温度上昇と夜間の 室温低下です。また、気になる最寒期の燃料補給回数は、朝に1回、日中は1~2回、夕方から 就寝まで3~4 回程度。就寝中は燃料補給をしていません。1回の燃料補給には針葉樹と広葉樹 を2本ずつストーブに投入。12月から 4 月までに使用した木材量は、購入した広葉樹の薪が 3m3、針葉樹の伐採材と廃材が 3.2 m3とのことです。
2012 年 12 月から 2013 年 4 月まで、1、2F と屋外に設置した温湿度測定装置で環境測定を したところ、全期間を通して1F と2F との温度差は1°C以下に維持されており、断熱性能の高 さを示していました。また、気になる温度変動は燃料補給をしていない夜間を含めておおむね 20°Cを維持。断熱性能に e-プラスターの蓄熱性能を組み合わせることにより、薪ストーブ1台 でも快適な住環境が維持できることが確認できました。木材の暖房エネルギー量を灯油に換算し て比較したところ、予測計算比で約 40%の省エネルギー効果が確認できました。 また、温度の安定と同時に室内の相対湿度も 40%を維持してインフルエンザなど風邪の原因菌 の繁殖を抑制。加湿器を使用しなくても、調理、入浴、洗濯乾燥などで生じた水分と e-プラス ターの調湿効果により、健康的な空気環境が維持されています。
(設計、実測協力:フーム空間計画工房)
(写真撮影:伊藤健次)
(写真撮影:伊藤健次)
日射熱と内部取得熱で60%の省エネルギーを実現
~H-project~
「e-プラスター20」を施工したパッシブソーラーハウスの省エネ性能を実測で確認 潜熱蓄熱効果で年間を通して快適な室内環境を創出
札幌市の中央区にあるパッシブソーラーハウスの実測事例を紹介します。 2010年7月に竣工したH-project。オーナーは夫婦と子供の3人家族。ギターの演奏を趣味にするご主人のスタジオと寝室を下階に配置し、周囲の山並みが見渡せる開放的なリビング・ダイニングは住宅の最上層にあります。
内装仕上げには潜熱蓄熱内装材「e-プラスター20」を採用。天井を含めた 270㎡にe -プラスター施工し、潜熱蓄熱によって室内に取り込んだ日射熱、電化製品や調理など の生活排熱を暖房に有効利用する計画です。補助暖房用の放熱器は高さ70mm の温水パネルヒータ。幅木のように外壁の下部に配置して、パネルヒータの上昇気流も「e-プラスター」に吸収、蓄熱。安定した室内放射熱環境が実現できるように配置しました。熱源は、バルクで配送される LPG(プロパンガス)。高効率ボイラーと組み合わせて、 暖房、給湯、調理用熱源として利用します。
住宅の開口部には高性能木製サッシを採用。住宅の熱損失係数 q 値は設計値で 1.24(W/ ㎡ /K)と、北海道庁が推進する北方型住宅 ECO基準を上回る断熱・気密性能を実現しています。また、新鮮空気は第2種機械換気で最下層から導入。機械室の暖 房配管で予熱して居住空間へと配気され、外気による寒さを感じることはありません。
H-project の熱損失係数 q 値を実測したところ、設計値を大幅に上回る 0.95(W/ ㎡ /K) を確認。潜熱蓄熱のパッシブ効果で負荷断熱 400mm に相当する熱性能の改善を実現しました。断熱材を厚くしなくても、高性能住宅の内装にe-プラスターを施工することで容易にパッシブソーラーハウスを実現できることが、実証されました。
一方、H-project で確認された自然温度差の実測値は 9.05°C。全く暖房をしなくても、内部取得熱で室内の温度は外気温度より9°Cも高く維持されることになります。自然 温度差と暖房量に関する既往の知見1)によれば、自然温度差が8°Cの場合、暖房量は 50%削減されることが知られています。しかし、この知見は日中の太陽熱によって室 温が過度に上昇するような住宅は想定しておらず、熱容量が少ない実際の高性能木造 住宅ではパッシブソーラーの効果が十分に得られない場合も散見されます。
e-プラスターを壁と天井に施工したH-project では、室内の熱容量が一般的な木造住 宅の約3倍。日中の日射熱を呼吸して夜間に放出することで、安定した室温変動と省エネルギー効果が期待されます。通年の測定結果でも、暖房用エネルギーは全熱損失量 の 40%と、期待どおりの省エネルギー性能を発揮していることが確認できました。また、心配された夏の暑さも夜間外気による通風で壁体に蓄冷。エアコンを利用することなく、快適な環境が維持できました。
札幌は PSP(Passive Solar Potential)が全国で最も低い地域として知られています。 冬期の日照時間が長い北海道の帯広や北見、釧路などの地域、本州の太平洋側地域ではe-プラスターのパッシブ蓄熱効果がより有効に発揮できると考えられます。
e-プラスターは室内取得熱を日中に吸収、夜間に放出して効果的に利用。60%もの大 幅な省エネルギー効果が安定した室内環境とともに実現されることを、実測で確認できました。
e-プラスターは室内取得熱を日中に吸収、夜間に放出して効果的に利用。60%もの大 幅な省エネルギー効果が安定した室内環境とともに実現されることを、実測で確認できました。
(設計、測定協力:フーム空間計画工房)
1) 荒谷登:住まいから暑さ・寒さを取り除く採暖から『暖房』、冷暴から「冷忘」 へ、彰国社、2013
南面大開口をもつ高断熱・高蓄熱ソーラー・ハウス。〜M-Project(札幌市)〜 PDF
ZEHに「e-プラスター」を施工して、快適環境を実現。~K-house(千歳市)~ PDF
